|
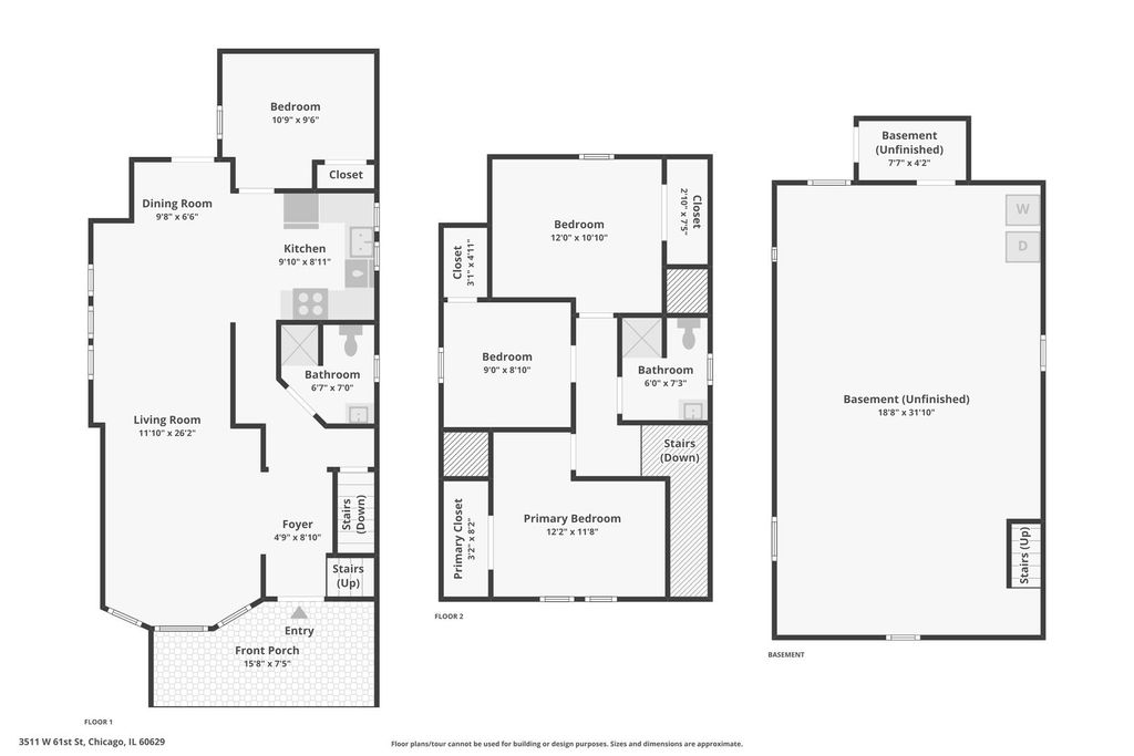
Stunning fully renovated single-family home in the heart of Chicago Lawn! Step inside to an inviting open-concept main level, perfect for modern living and effortless entertaining. The first floor features a spacious living and dining area, a stylish new kitchen, plus a convenient first-floor bedroom and full bath. Upstairs you'll find three generously sized bedrooms and a beautifully finished full bathroom, offering comfortable and private living space for the whole household. The walkout basement is unfinished and ready for your ideas-ideal for storage, hobbies, or future expansion. Enjoy outdoor living in the large backyard, paired with a detached 1.5-car garage for added convenience. Located in an excellent, walkable area close to local shops, restaurants, schools, and parks. A truly move-in-ready home with exceptional updates throughout-don't miss this opportunity!
Property Type(s):
Single Family
| Last Updated | 12/5/2025 | Year Built | 1898 |
|---|---|---|---|
| Community | CHI - Chicago Lawn | Garage Spaces | 1.5 |
| County | Cook |
Additional Details
| AIR | Central Air |
|---|---|
| AIR CONDITIONING | Yes |
| APPLIANCES | Dishwasher, Dryer, Microwave, Range, Refrigerator, Washer |
| AREA | CHI - Chicago Lawn |
| BASEMENT | Full, Unfinished, Yes |
| CONSTRUCTION | Aluminum Siding |
| GARAGE | Yes |
| HEAT | Forced Air, Natural Gas |
| LOT | 3101 sq ft |
| LOT DIMENSIONS | 25X124 |
| PARKING | Detached, Garage |
| SEWER | Public Sewer |
| TAXES | 3371.43 |
| WATER | Public |
Location
Listed with Redfin Corporation
The data relating to real estate for sale on this web site comes in part from the Broker ReciprocitySM Program of MRED. All real estate listings are marked with the Broker ReciprocitySM logo or the MRED Broker ReciprocitySM thumbnail logo (a little black house) and detailed information about them includes the name of the listing brokers.
The broker providing these data believes them to be correct, but advises interested parties to confirm them before relying on them in a purchase decision.
Copyright 2025 MRED. All rights reserved.

The broker providing these data believes them to be correct, but advises interested parties to confirm them before relying on them in a purchase decision.
Copyright 2025 MRED. All rights reserved.
This IDX solution is (c) Diverse Solutions 2025.

