|
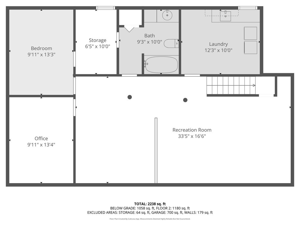
Welcome to this stunning home nestled on over half an acre in the peaceful Fox Lawn neighborhood. This beautifully maintained ranch features 3 spacious bedrooms with the potential for 5, offering a flexible layout ideal for multi-generational living. Large windows adorned with elegant plantation shutters fill the lving room with natural light and sophistication. The main level showcases rich hardwood flooring throughout and includes a bright galley kitchen with granite countertops, stainless steel appliances, and picturesque views of the backyard, perfect for entertaining or enjoying quiet evenings outdoors. The primary suite offers a private full bath, while all bedrooms provide generous space and comfort. The fully finished basement expands your living options with a huge family room, play area, and two additional rooms currently used as an office and bedroom. Step outside to a cobblestone patio with pergola overlooking the open field, creating a serene outdoor retreat. Additional highlights include a heated and air conditioned freshly painted 2.5 car garage, newer sump pump, hot water tank, and whole-house generator. This move-in ready home truly has it all, space, style, and comfort, ready for its next family to fall in love.
Property Type(s):
Single Family
| Last Updated | 1/29/2026 | Tract | Fox Lawn |
|---|---|---|---|
| Year Built | 1972 | Community | Yorkville / Bristol |
| Garage Spaces | 2.5 | County | Kendall |
SCHOOLS
| School District | Yorkville High School |
|---|---|
| Jr. High School | Yorkville Middle School |
| High School | Yorkville High School |
Additional Details
| AIR | Ceiling Fan(s), Central Air |
|---|---|
| AIR CONDITIONING | Yes |
| AMENITIES | Water |
| APPLIANCES | Dishwasher, Disposal, Microwave, Range, Refrigerator, Stainless Steel Appliance(s) |
| AREA | Yorkville / Bristol |
| BASEMENT | Finished, Full, Sump Pump, Yes |
| CONSTRUCTION | Brick, Vinyl Siding |
| EXTERIOR | Fire Pit |
| GARAGE | Attached Garage, Yes |
| HEAT | Radiant |
| HOA DUES | 110 |
| INTERIOR | Walk-In Closet(s) |
| LOT | 0.59 acre(s) |
| LOT DESCRIPTION | Corner Lot, Landscaped |
| LOT DIMENSIONS | 190X120X167X100 |
| PARKING | Concrete, Garage Door Opener, Heated Garage, Attached, Garage |
| SEWER | Septic Tank |
| STYLE | Ranch |
| SUBDIVISION | Fox Lawn |
| TAXES | 6223 |
| WATER | Shared Well |
Location
Listed with Coldwell Banker Real Estate Group
The data relating to real estate for sale on this web site comes in part from the Broker ReciprocitySM Program of MRED. All real estate listings are marked with the Broker ReciprocitySM logo or the MRED Broker ReciprocitySM thumbnail logo (a little black house) and detailed information about them includes the name of the listing brokers.
The broker providing these data believes them to be correct, but advises interested parties to confirm them before relying on them in a purchase decision.
Copyright 2026 MRED. All rights reserved.

The broker providing these data believes them to be correct, but advises interested parties to confirm them before relying on them in a purchase decision.
Copyright 2026 MRED. All rights reserved.
This IDX solution is (c) Diverse Solutions 2026.

