|
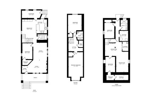
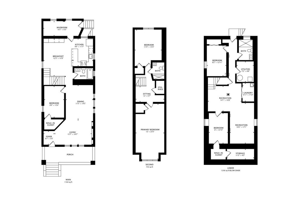
Welcome to this beautifully reimagined 5-bedroom, 3-bathroom bungalow in the heart of Greater Grand Crossing, where timeless architecture meets modern craftsmanship. This home was gutted down to the bricks and mortar and rebuilt with all new framing, plumbing, electrical, and drywall-offering peace of mind and quality for years to come. Each of the three levels features a full bathroom, making the layout ideal for multi-generational living or hosting guests. The spacious primary bedroom spans half of the upper level, providing a private retreat, while every bedroom is large enough to comfortably accommodate a king-size bed-a rare find in city living. Enjoy cooking and entertaining in the open-concept kitchen with brand-new stainless steel appliances, contemporary finishes, and ample storage. The enclosed back porch offers a cozy flex space perfect for relaxing, working from home, or enjoying year-round comfort. Located on a quiet residential block in a growing neighborhood with easy access to parks, transit, and downtown, this turn-key home is perfect for buyers seeking space, style, and solid construction. Schedule your showing today!
Property Type(s):
Single Family
| Last Updated | 3/4/2026 | Year Built | 1913 |
|---|---|---|---|
| Community | CHI - Greater Grand Crossing | County | Cook |
Price History
| Prior to Mar 4, '26 | $348,000 |
|---|---|
| Mar 4, '26 - Today | $339,999 |
Additional Details
| AIR | None |
|---|---|
| AREA | CHI - Greater Grand Crossing |
| BASEMENT | Daylight, Finished, Full, Yes |
| CONSTRUCTION | Brick |
| HEAT | None |
| LOT | 0 |
| LOT DIMENSIONS | 25X125 |
| PARKING | Off Street |
| SEWER | Public Sewer |
| STYLE | Bungalow |
| TAXES | 2532 |
| WATER | Public |
Location
Listed with @properties Christie's International Real Estate
The data relating to real estate for sale on this web site comes in part from the Broker ReciprocitySM Program of MRED. All real estate listings are marked with the Broker ReciprocitySM logo or the MRED Broker ReciprocitySM thumbnail logo (a little black house) and detailed information about them includes the name of the listing brokers.
The broker providing these data believes them to be correct, but advises interested parties to confirm them before relying on them in a purchase decision.
Copyright 2026 MRED. All rights reserved.

The broker providing these data believes them to be correct, but advises interested parties to confirm them before relying on them in a purchase decision.
Copyright 2026 MRED. All rights reserved.
This IDX solution is (c) Diverse Solutions 2026.

