|
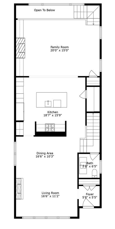
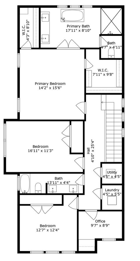
FULL WALK THRU VIDEO ON VTOUR BUTTON - WALK THE HOUSE FROM YOUR CHAIR. Amazing single family home in prime Logan Square location on an extra wide lot. Modern white board and batten facade with black accents and limestone entry. Spacious, extra wide floor plan with 6 bedrooms (four bedrooms on the second level - 2 in the lower level). Sun filled main level with 10' ceilings and white oak hardwood flooring. Combined living/dining room with large windows offering ample natural light and wood burning fireplace with gas log. Chef quality kitchen featuring professional grade appliances, large island with bar seating, shaker cabinetry with under counter lighting, quartz counters and backsplash, butler pantry with beverage center, and pantry closet. Adjoining family room with steam fireplace, built-ins, and large windows overlooking the backyard. Spacious primary bedroom features 12' vaulted ceilings, two walk-in closets, and inspiring master bath with freestanding soaking tub, frameless glass shower, oversized vanity with dual sinks and quartz countertops, and heated flooring. Two additional bedrooms, full bath with dual vanity, tub and heated flooring, laundry with washer/dryer, and zoned heating/cooling complete the upper level. 9ft ceilings in the basement with radiant heated flooring throughout includes recreation room with wet bar + beverage center, two guest bedrooms, full bath, two storage spaces, mechanicals, and second laundry with hook-up and sink. Statement lighting, designer fixtures and finishes, metal railings, coffered ceilings, custom millwork, pre-wiring for surround sound, and skylights. Fully enclosed landscaped yard with rear paver patio and detached two-car garage featuring roof deck with composite decking. Awesome location in Logan Square! Easy access to all your favorite spots for food, entertainment and shopping. Conveniently located near I94, parks and public tran. Close to the Blue Line.
Property Type(s):
Single Family
| Last Updated | 12/9/2025 | Year Built | 2021 |
|---|---|---|---|
| Community | CHI - Logan Square | Garage Spaces | 2.0 |
| County | Cook |
Additional Details
| AIR | Central Air |
|---|---|
| AIR CONDITIONING | Yes |
| APPLIANCES | Cooktop, Dishwasher, Disposal, Dryer, Microwave, Oven, Range Hood, Refrigerator, Washer, Wine Refrigerator |
| AREA | CHI - Logan Square |
| BASEMENT | Concrete, Daylight, Finished, Full, Storage Space, Sump Pump, Yes |
| CONSTRUCTION | Fiber Cement |
| FIREPLACE | Yes |
| GARAGE | Yes |
| HEAT | Forced Air, Natural Gas, Radiant, Radiant Floor |
| INTERIOR | Built-in Features, Cathedral Ceiling(s), Coffered Ceiling(s), Entrance Foyer, High Ceilings, Pantry, Walk-In Closet(s), Wet Bar |
| LOT | 3528 sq ft |
| LOT DIMENSIONS | 32.68 X 107.83 |
| PARKING | Detached, Garage |
| SEWER | Public Sewer |
| STYLE | American 4-Sq., Contemporary |
| TAXES | 26549 |
| WATER | Public |
Location
Listed with Jameson Sotheby's Int'l Realty
The data relating to real estate for sale on this web site comes in part from the Broker ReciprocitySM Program of MRED. All real estate listings are marked with the Broker ReciprocitySM logo or the MRED Broker ReciprocitySM thumbnail logo (a little black house) and detailed information about them includes the name of the listing brokers.
The broker providing these data believes them to be correct, but advises interested parties to confirm them before relying on them in a purchase decision.
Copyright 2025 MRED. All rights reserved.

The broker providing these data believes them to be correct, but advises interested parties to confirm them before relying on them in a purchase decision.
Copyright 2025 MRED. All rights reserved.
This IDX solution is (c) Diverse Solutions 2025.

