|
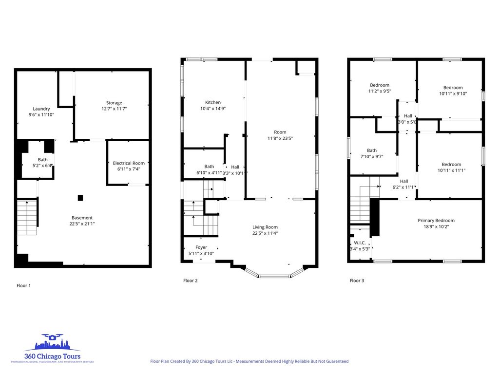
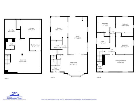
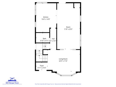
Exceptional Opportunity in Mt. Greenwood We are pleased to present this distinguished brick raised ranch with a full addition, offering a versatile and spacious living environment. This property features: Four to Five Bedrooms: Including three full bathrooms, with four true bedrooms on the upper level that feature all new carpeting and an additional bedroom and bathroom in the finished basement Elegant Interior: An open-concept main level with an updated kitchen, ideal for modern living and entertaining Finished Basement: Complete with an extra bedroom and bathroom, providing ample space for family or guests Outdoor Amenities: A fully fenced yard, perfect for outdoor activities and privacy Parking & Access: Side driveway leading to a two-car garage Prime Location: Situated on Central Park, recognized as the heart of Mt. Greenwood While the home requires only minor finishing touches, it presents an exceptional opportunity for swift customization. The property is easy to show, and we invite you to contact us today to schedule a viewing.
Property Type(s):
Single Family
| Last Updated | 12/10/2025 | Year Built | 1947 |
|---|---|---|---|
| Community | CHI - Mount Greenwood | Garage Spaces | 2.0 |
| County | Cook |
Additional Details
| AIR | Ceiling Fan(s), Central Air |
|---|---|
| AIR CONDITIONING | Yes |
| APPLIANCES | Dishwasher, Microwave, Range, Refrigerator, Stainless Steel Appliance(s) |
| AREA | CHI - Mount Greenwood |
| BASEMENT | Finished, Full, Sump Pump, Yes |
| CONSTRUCTION | Brick, Vinyl Siding |
| GARAGE | Yes |
| HEAT | Forced Air, Natural Gas |
| LOT | 4970 sq ft |
| LOT DIMENSIONS | 40 X 125 |
| PARKING | Concrete, Garage Door Opener, Detached, Garage |
| SEWER | Public Sewer |
| TAXES | 6557 |
| WATER | Public |
Location
Listed with Lorenz Realty Group
The data relating to real estate for sale on this web site comes in part from the Broker ReciprocitySM Program of MRED. All real estate listings are marked with the Broker ReciprocitySM logo or the MRED Broker ReciprocitySM thumbnail logo (a little black house) and detailed information about them includes the name of the listing brokers.
The broker providing these data believes them to be correct, but advises interested parties to confirm them before relying on them in a purchase decision.
Copyright 2025 MRED. All rights reserved.

The broker providing these data believes them to be correct, but advises interested parties to confirm them before relying on them in a purchase decision.
Copyright 2025 MRED. All rights reserved.
This IDX solution is (c) Diverse Solutions 2025.

