|
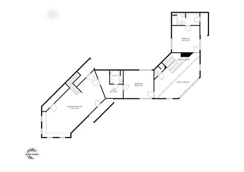
This beautiful, contemporary Passive Solar Home is located in highly sought-after Devonshire South, set on a cul-de-sac providing park-like views. Carefully maintained by its original owners, the home is custom-designed with a spacious layout designed for functionality and comfort. The home has vaulted ceilings, a large living room, and a dining room with an open floor plan, and expansive windows allowing for tons of natural light. The home has 3 or 4 bedrooms (depending on the configuration), 3.5 baths, two staircases, a two-and-a-half-car garage with an Electric Vehicle charger, and a completely encapsulated crawl space. Enjoy custom-built-in furniture and cabinetry throughout the house in the primary bedroom suite, office, dining room, sunroom, family room, recreation room, and hallways. The primary bedroom suite is located on the first floor and features extensive one-of-a-kind custom cabinetry in both the sleeping room and the attached private study, a gorgeous, recently updated bathroom, an oversized walk-in closet, additional cedar-lined closets, and a large sitting room with heated tile floors that has direct access to a private, fenced patio with a hot tub. The large kitchen area features Wolf double ovens, a Thermador cooktop, and a Sub-Zero refrigerator adjoining an eat-in area and family room. The laundry room features an Electrolux washer and dryer, utility sink, and a door to a large, private dog run. The second floor features two bedrooms, each with a private ensuite bath and walk-in closets. There is a stunning oak and glass-railed bridge connecting the bedroom suites, overlooking the living room and parkway. Also, on the second floor is a very large recreation room presently being used as an exercise, TV, and office space. The recreation room could be converted into an additional, very spacious bedroom. The large backyard is surrounded by more than two dozen trees and features extensive decking, tiered gardens, seating areas, and a fire circle.
Property Type(s):
Single Family
| Last Updated | 4/16/2026 | Tract | Devonshire South |
|---|---|---|---|
| Year Built | 1988 | Community | Champaign, Savoy |
| Garage Spaces | 2.5 | County | Champaign |
SCHOOLS
| School District | Central High School |
|---|---|
| Elementary School | Unit 4 Of Choice |
| Jr. High School | Champaign/Middle Call Unit 4 351 |
| High School | Central High School |
Price History
| Prior to Apr 16, '26 | $865,000 |
|---|---|
| Apr 16, '26 - Today | $849,000 |
Additional Details
| AIR | Central Air |
|---|---|
| AIR CONDITIONING | Yes |
| APPLIANCES | Dishwasher, Disposal, Double Oven, Dryer, Microwave, Oven, Stainless Steel Appliance(s), Washer |
| AREA | Champaign, Savoy |
| BASEMENT | Crawl Space |
| CONSTRUCTION | Frame, Wood Siding |
| EXTERIOR | Dog Run, Fire Pit |
| FIREPLACE | Yes |
| GARAGE | Attached Garage, Yes |
| HEAT | Forced Air, Natural Gas, Radiant Floor |
| HOA DUES | 400 |
| INTERIOR | Bookcases, Built-in Features, Granite Counters, Walk-In Closet(s) |
| LOT | 0 |
| LOT DESCRIPTION | Cul-de-sac, Pie Shaped Lot |
| LOT DIMENSIONS | 63X148X169X50X141 |
| PARKING | Concrete, Garage Door Opener, Attached, Driveway, Garage |
| SEWER | Public Sewer |
| STYLE | Contemporary |
| SUBDIVISION | Devonshire South |
| TAXES | 16223 |
| WATER | Public |
Location
Listed with Realty Select One
The data relating to real estate for sale on this web site comes in part from the Broker ReciprocitySM Program of MRED. All real estate listings are marked with the Broker ReciprocitySM logo or the MRED Broker ReciprocitySM thumbnail logo (a little black house) and detailed information about them includes the name of the listing brokers.
The broker providing these data believes them to be correct, but advises interested parties to confirm them before relying on them in a purchase decision.
Copyright 2026 MRED. All rights reserved.

The broker providing these data believes them to be correct, but advises interested parties to confirm them before relying on them in a purchase decision.
Copyright 2026 MRED. All rights reserved.
This IDX solution is (c) Diverse Solutions 2026.

