|
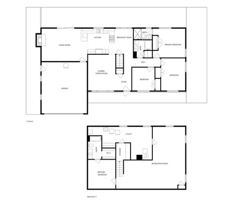
If you are looking for easy one-floor living, this is it! Beautifully maintained and updated three-plus-bedroom, three-bath home, situated on an expansive half acre lot with brick walk and patio, features a great kitchen that overlooks a large family room with dramatic fireplace and custom cabinetry & lighting. The well designed cooks delight kitchen is truly the center of the home for everyday living and entertaining with windows that show a panoramic view of the peaceful backyard. The spacious living room/dining room has views of the yard with brick walk. The primary suite has an updated private bath & closet with organizers. Two other bedrooms with wood floors have easy access to the hall bath. The huge finished basement is great retreat area with rec room, office or bedroom and full bath. Conveniently located and ready to move in condition, this exceptional ranch is wonderful place to call home!
Property Type(s):
Single Family
| Last Updated | 1/30/2026 | Year Built | 1967 |
|---|---|---|---|
| Community | Crystal Lake / Lakewood / Prairie Grove | Garage Spaces | 2.0 |
| County | McHenry |
Additional Details
| AIR | Central Air |
|---|---|
| AIR CONDITIONING | Yes |
| AREA | Crystal Lake / Lakewood / Prairie Grove |
| BASEMENT | Finished, Partial, Yes |
| CONSTRUCTION | Brick, Cedar |
| FIREPLACE | Yes |
| GARAGE | Attached Garage, Yes |
| HEAT | Natural Gas |
| INTERIOR | Built-in Features |
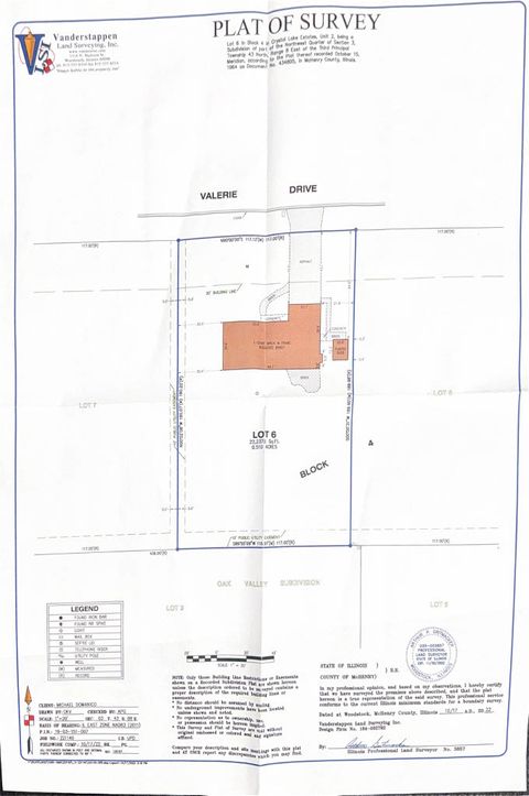
| LOT | 0.51 acre(s) |
| LOT DIMENSIONS | 117x189.90x117.12x190.07 |
| PARKING | Asphalt, Garage Door Opener, Attached, Garage |
| SEWER | Septic Tank |
| STYLE | Ranch |
| TAXES | 7139 |
| WATER | Well |
Listed with Coldwell Banker Realty
The data relating to real estate for sale on this web site comes in part from the Broker ReciprocitySM Program of MRED. All real estate listings are marked with the Broker ReciprocitySM logo or the MRED Broker ReciprocitySM thumbnail logo (a little black house) and detailed information about them includes the name of the listing brokers.
The broker providing these data believes them to be correct, but advises interested parties to confirm them before relying on them in a purchase decision.
Copyright 2026 MRED. All rights reserved.

The broker providing these data believes them to be correct, but advises interested parties to confirm them before relying on them in a purchase decision.
Copyright 2026 MRED. All rights reserved.
This IDX solution is (c) Diverse Solutions 2026.

