|
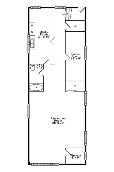
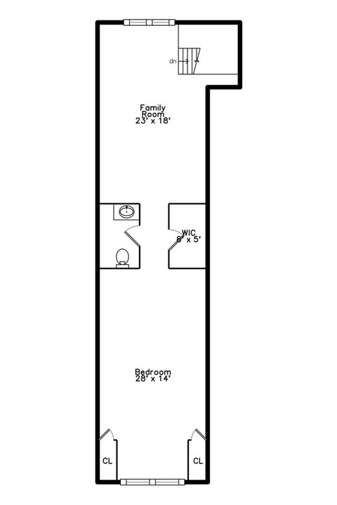
Central Berwyn inviting bungalow featuring beautiful hardwood floors and spacious, light-filled rooms throughout. This well-maintained home, thoughtfully updated over the years, offers four generously sized bedrooms and 2.5 baths. The first floor includes three bedrooms with ample closet space, a full bath, separate living and dining rooms, and a large open kitchen with a breakfast area ideal for everyday living and entertaining. The second floor is home to a spacious primary suite with a half bath and a bonus room perfect for a home office or den. The finished lower level adds valuable living space with a dedicated laundry room, full bath, bonus room, expansive tiled recreation room, and abundant storage. Outside, enjoy a fully fenced yard with a dedicated patio space leading to a two-car garage. Numerous updates include new window treatments, new windows in the living room and kitchen, an updated half bath, garage door and opener, fencing (2014), a new sewer line (2022), and first-floor painting completed in (2024).
Property Type(s):
Single Family
| Last Updated | 1/29/2026 | Year Built | 1926 |
|---|---|---|---|
| Community | Berwyn | Garage Spaces | 2.0 |
| County | Cook |
Additional Details
| AIR | Central Air |
|---|---|
| AIR CONDITIONING | Yes |
| APPLIANCES | Dishwasher, Dryer, Microwave, Range, Refrigerator, Washer |
| AREA | Berwyn |
| BASEMENT | Full, Partially Finished, Yes |
| CONSTRUCTION | Brick |
| FIREPLACE | Yes |
| GARAGE | Yes |
| HEAT | Forced Air, Natural Gas |
| LOT | 0 |
| LOT DIMENSIONS | 30X126 |
| PARKING | Detached, Garage |
| SEWER | Public Sewer |
| STYLE | Bungalow |
| TAXES | 6951.26 |
Location
Listed with Berkshire Hathaway HomeServices Chicago
The data relating to real estate for sale on this web site comes in part from the Broker ReciprocitySM Program of MRED. All real estate listings are marked with the Broker ReciprocitySM logo or the MRED Broker ReciprocitySM thumbnail logo (a little black house) and detailed information about them includes the name of the listing brokers.
The broker providing these data believes them to be correct, but advises interested parties to confirm them before relying on them in a purchase decision.
Copyright 2026 MRED. All rights reserved.

The broker providing these data believes them to be correct, but advises interested parties to confirm them before relying on them in a purchase decision.
Copyright 2026 MRED. All rights reserved.
This IDX solution is (c) Diverse Solutions 2026.

