|
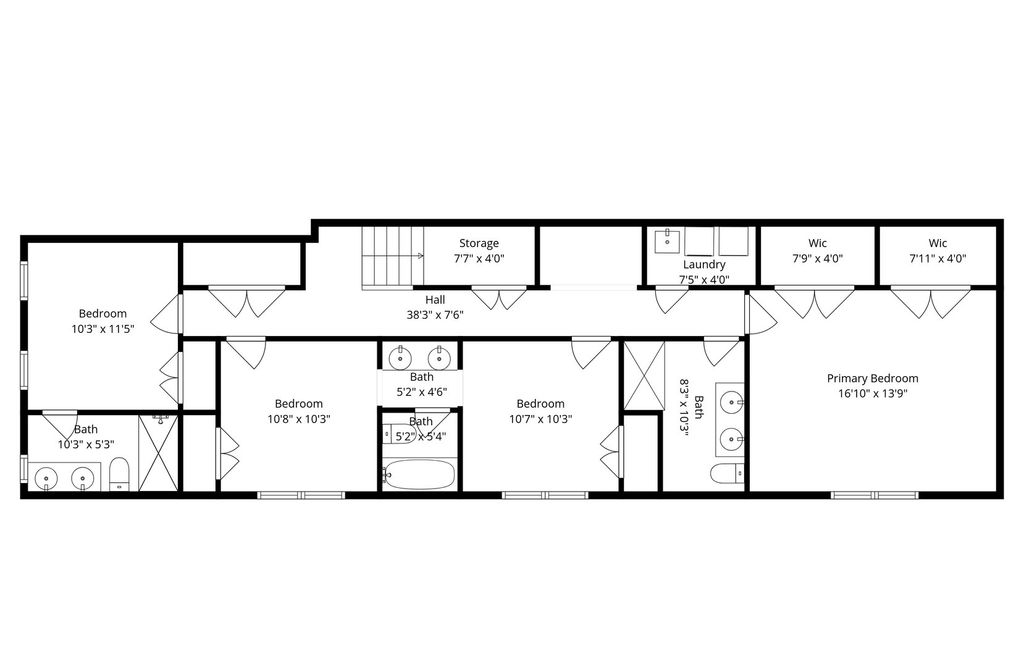
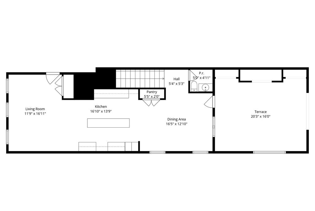
Stunning New Construction Duplex-Down in the Heart of Wrigleyville & Southport Corridor! Welcome to 1124 W Addison, a brand-new 4-bedroom, 3.5-bathroom duplex-down that combines luxury, space, and unbeatable location in one of Chicago's most dynamic neighborhoods. Perfectly situated just steps from Wrigley Field and the vibrant Southport Corridor, this home places you in the center of world-class dining, boutique shopping, nightlife, parks, and public transit. Spread across two expansive levels, this residence feels like a single-family home, offering exceptional space and privacy for both everyday living and entertaining. The main level features an open-concept layout with oversized floor to ceiling windows, wide-plank hardwood floors, and a stunning chef's kitchen with custom cabinetry, high-end appliances, quartz countertops, and a large island with seating. Downstairs, the primary suite serves as a private retreat, complete with a spa-inspired bath and huge walk in closet space. Three additional bedrooms and well-appointed baths offer flexibility for family, guests, or a home office. Enjoy seamless indoor-outdoor living with your private outdoor terrace, perfect for grilling, entertaining, or relaxing in the heart of the city. Additional highlights include high ceilings, designer finishes throughout. 1 garage parking space included. Option for Cubs parking/garage for additional income or garage with 1bed/1bath rental income ADU. Don't miss this rare opportunity to own a luxury duplex-down just steps from Wrigley Field in one of Chicago's most sought-after neighborhoods.
Property Type(s):
Condo/Townhouse/Co-Op
| Last Updated | 3/10/2026 | Year Built | 2025 |
|---|---|---|---|
| Community | CHI - Lake View | Garage Spaces | 1.0 |
| County | Cook |
SCHOOLS
| School District | Lake View High School |
|---|---|
| Elementary School | Blaine Elementary School |
| Jr. High School | Blaine Elementary School |
| High School | Lake View High School |
Additional Details
| AIR | Central Air |
|---|---|
| AIR CONDITIONING | Yes |
| AMENITIES | Insurance, Snow Removal, Water |
| APPLIANCES | Dishwasher, Disposal, Double Oven, Dryer, Freezer, Microwave, Range, Refrigerator, Washer |
| AREA | CHI - Lake View |
| BASEMENT | Finished, Full, Yes |
| CONSTRUCTION | Brick |
| GARAGE | Yes |
| HEAT | Natural Gas |
| HOA DUES | 200 |
| INTERIOR | Built-in Features, Storage, Walk-In Closet(s) |
| LOT | 0 |
| LOT DIMENSIONS | Condo |
| PARKING | Detached, Garage |
| SEWER | Public Sewer |
| STORIES | 3 |
Location
Listed with @properties Christie's International Real Estate
The data relating to real estate for sale on this web site comes in part from the Broker ReciprocitySM Program of MRED. All real estate listings are marked with the Broker ReciprocitySM logo or the MRED Broker ReciprocitySM thumbnail logo (a little black house) and detailed information about them includes the name of the listing brokers.
The broker providing these data believes them to be correct, but advises interested parties to confirm them before relying on them in a purchase decision.
Copyright 2026 MRED. All rights reserved.

The broker providing these data believes them to be correct, but advises interested parties to confirm them before relying on them in a purchase decision.
Copyright 2026 MRED. All rights reserved.
This IDX solution is (c) Diverse Solutions 2026.

