|
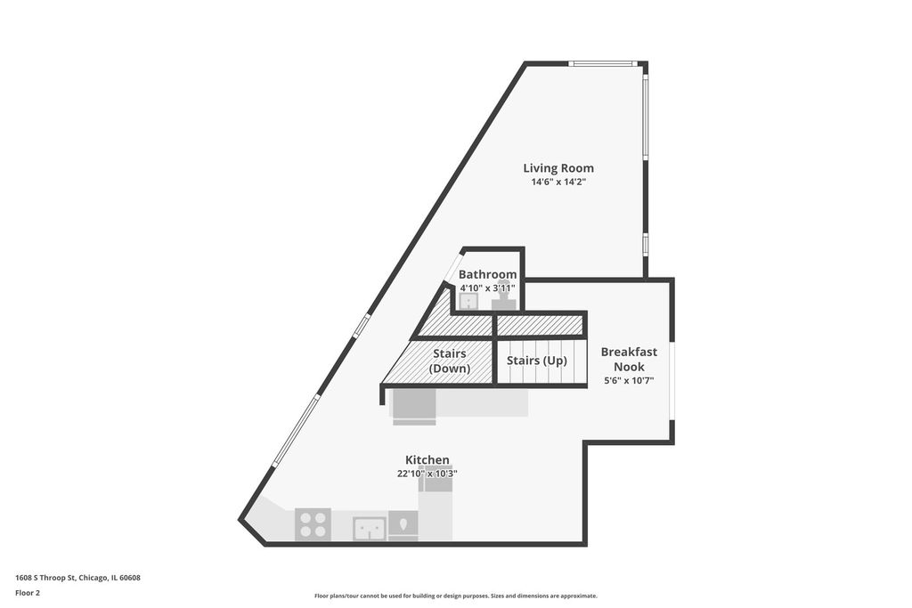
Rare Single-Family Home with Rooftop Deck in the Heart of Pilsen! Opportunities like this don't come around often. This one-of-a-kind single-family home blends bold architecture, incredible natural light, and standout living spaces in one of Chicago's most sought-after neighborhoods. The moment you walk in, you're greeted by a stunning two-story living room with soaring ceilings and dramatic windows, filling the home with natural light and creating a space that feels both open and unforgettable. The entire top floor is dedicated to the primary suite, creating a private retreat unlike anything else in the neighborhood. Wake up to beautiful wrap-around windows and step directly outside to your walk-out rooftop deck-perfect for morning coffee, sunset views, and entertaining under the Chicago skyline. The flexible layout offers additional bedrooms and living space ideal for guests, a media room, or creative workspace. Downstairs, the basement provides a dedicated office and laundry area, offering extra functionality for today's lifestyle. Tucked away on a quiet residential street just off 16th and Throop, you're just steps from Pilsen's vibrant restaurant scene, coffee shops, art galleries, and nightlife. Plus, you're minutes from the Illinois Medical District, UIC, West Loop, and downtown, making this location ideal for professionals and city lovers alike. A rare chance to own a truly distinctive single-family home in Pilsen-homes like this don't last long.
Property Type(s):
Single Family
| Last Updated | 3/14/2026 | Year Built | 2008 |
|---|---|---|---|
| Community | CHI - Lower West Side | Garage Spaces | 1.0 |
| County | Cook |
Additional Details
| AIR | Central Air |
|---|---|
| AIR CONDITIONING | Yes |
| APPLIANCES | Dishwasher, Disposal, Dryer, Freezer, Microwave, Range, Refrigerator, Washer |
| AREA | CHI - Lower West Side |
| BASEMENT | Finished, Partial, Yes |
| CONSTRUCTION | Brick |
| FIREPLACE | Yes |
| GARAGE | Attached Garage, Yes |
| HEAT | Forced Air, Natural Gas |
| LOT | 902 sq ft |
| LOT DIMENSIONS | 36X36 |
| PARKING | Attached, Garage |
| SEWER | Public Sewer |
| STYLE | Contemporary |
| TAXES | 10447.22 |
| WATER | Public |
Location
Listed with Baird & Warner
The data relating to real estate for sale on this web site comes in part from the Broker ReciprocitySM Program of MRED. All real estate listings are marked with the Broker ReciprocitySM logo or the MRED Broker ReciprocitySM thumbnail logo (a little black house) and detailed information about them includes the name of the listing brokers.
The broker providing these data believes them to be correct, but advises interested parties to confirm them before relying on them in a purchase decision.
Copyright 2026 MRED. All rights reserved.

The broker providing these data believes them to be correct, but advises interested parties to confirm them before relying on them in a purchase decision.
Copyright 2026 MRED. All rights reserved.
This IDX solution is (c) Diverse Solutions 2026.

