|
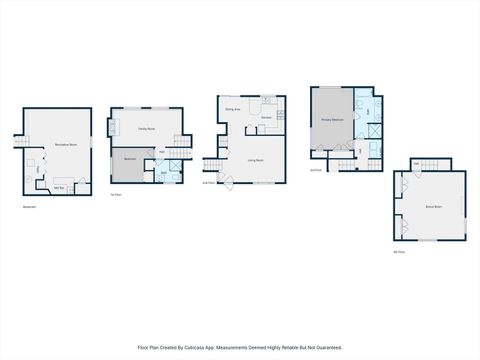
Don't let the size of the exterior fool you! This home offers far more space and flexibility than expected. Each bedroom has their own level within the home. Step inside to a unique multi-level layout featuring a formal living room and open kitchen/dining combo overlooking the English basement below. The English basement includes a large family room with gas fireplace, full bath, and bedroom, ideal for guests or extended living. A finished sub-basement adds a wet bar, more living space and mechanicals area, with additional storage in the crawl. Upper levels -note the word levels, offer a spacious bedroom, shared bath, and laundry closet. The top level features the largest bedroom referred to as the "penthouse", with two closets and custom shelving. All bedrooms feature new carpeting. Enjoy a fully fenced backyard with large concrete patio and a two-car garage. Move-in ready with opportunity for cosmetic updates. Sold as-is.
Property Type(s):
Single Family
| Last Updated | 3/18/2026 | Year Built | 1994 |
|---|---|---|---|
| Community | Aurora / Eola | Garage Spaces | 2.0 |
| County | Kane |
SCHOOLS
| School District | West Aurora High School |
|---|---|
| High School | West Aurora High School |
Additional Details
| AIR | Central Air |
|---|---|
| AIR CONDITIONING | Yes |
| APPLIANCES | Bar Fridge, Dishwasher, Range, Range Hood, Refrigerator |
| AREA | Aurora / Eola |
| BASEMENT | Crawl Space, Daylight, Finished, Partial, Yes |
| CONSTRUCTION | Brick, Vinyl Siding |
| FIREPLACE | Yes |
| GARAGE | Attached Garage, Yes |
| HEAT | Natural Gas |
| HOA DUES | 140 |
| INTERIOR | Pantry, Wet Bar |
| LOT | 6534 sq ft |
| LOT DIMENSIONS | 38x102.5x65.3x105.4 |
| PARKING | Asphalt, Garage Door Opener, Attached, Unassigned, Off Street, Driveway, Garage |
| SEWER | Public Sewer |
| TAXES | 7730 |
| WATER | Public |
Location
Listed with Redhawk Realty IL
The data relating to real estate for sale on this web site comes in part from the Broker ReciprocitySM Program of MRED. All real estate listings are marked with the Broker ReciprocitySM logo or the MRED Broker ReciprocitySM thumbnail logo (a little black house) and detailed information about them includes the name of the listing brokers.
The broker providing these data believes them to be correct, but advises interested parties to confirm them before relying on them in a purchase decision.
Copyright 2026 MRED. All rights reserved.

The broker providing these data believes them to be correct, but advises interested parties to confirm them before relying on them in a purchase decision.
Copyright 2026 MRED. All rights reserved.
This IDX solution is (c) Diverse Solutions 2026.

