|
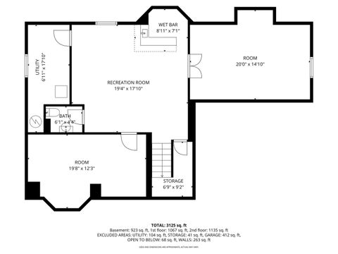
Welcome to this beautifully maintained 4 bedroom plus one in basement 2.2 bath Summerlin home, perfectly positioned on a desirable lot with exceptional curb appeal and inviting outdoor spaces. From the moment you arrive, you'll appreciate the charming exterior and welcoming presence that sets this home apart. Step inside to a bright and airy two-story foyer that flows seamlessly into spacious living and dining areas-ideal for both everyday living and hosting guests. The open-concept kitchen is designed with both style and function in mind, featuring stainless steel appliances, ample cabinetry, and a generous eating area overlooking the backyard. The adjoining family room offers a warm and comfortable atmosphere, complete with a cozy fireplace-perfect for relaxing evenings at home.Upstairs, the expansive primary suite serves as a private retreat with vaulted ceilings, a large walk-in closet, and a well-appointed en-suite w double sink & large shower. Three additional bedrooms provide plenty of space for family, guests, or flexible use, along with a full hall bath and the convenience of second-floor laundry.The finished basement expands your living space with endless possibilities-ideal for a recreation area, media room, or home gym-while also offering an additional bedroom and full bath for added versatility.Step outside to enjoy the backyard oasis, complete with a spacious patio & fire pit perfect for outdoor dining, entertaining, or simply unwinding. The inviting front porch adds even more charm and a perfect spot to relax and enjoy the neighborhood.Located in the highly sought-after Oswego 308 School District and just minutes from parks, shopping, and dining, this home offers the perfect combination of comfort, style, and location. Roof (2019) Siding (2019), HVAC (2025), Sump Pump (2016), Appliances (2010 approx.)
Property Type(s):
Single Family
| Last Updated | 4/20/2026 | Tract | Summerlin |
|---|---|---|---|
| Year Built | 2000 | Community | Aurora / Eola |
| Garage Spaces | 2.0 | County | Kendall |
Additional Details
| AIR | Central Air |
|---|---|
| AIR CONDITIONING | Yes |
| APPLIANCES | Dishwasher, Disposal, Dryer, Microwave, Range, Refrigerator, Stainless Steel Appliance(s), Washer |
| AREA | Aurora / Eola |
| BASEMENT | Finished, Full, Yes |
| CONSTRUCTION | Aluminum Siding, Steel Siding, Vinyl Siding |
| FIREPLACE | Yes |
| GARAGE | Attached Garage, Yes |
| HEAT | Forced Air, Natural Gas |
| HOA DUES | 290 |
| INTERIOR | Cathedral Ceiling(s) |
| LOT | 0 |
| LOT DIMENSIONS | 53X122X114X100 |
| PARKING | Asphalt, Attached, Garage |
| STYLE | Traditional |
| SUBDIVISION | Summerlin |
| TAXES | 10826 |
| WATER | Public |
Location
Listed with Torg Realty Inc
The data relating to real estate for sale on this web site comes in part from the Broker ReciprocitySM Program of MRED. All real estate listings are marked with the Broker ReciprocitySM logo or the MRED Broker ReciprocitySM thumbnail logo (a little black house) and detailed information about them includes the name of the listing brokers.
The broker providing these data believes them to be correct, but advises interested parties to confirm them before relying on them in a purchase decision.
Copyright 2026 MRED. All rights reserved.

The broker providing these data believes them to be correct, but advises interested parties to confirm them before relying on them in a purchase decision.
Copyright 2026 MRED. All rights reserved.
This IDX solution is (c) Diverse Solutions 2026.

