|
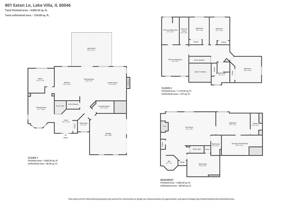
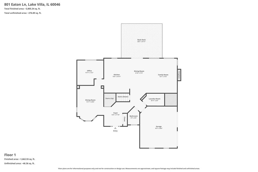
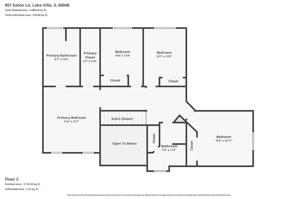
Beautifully updated and move-in ready, this highly desirable Tremont model offers 5 bedrooms, 3 full bathrooms, and 1 half bath, delivering expansive living space with a seamless blend of comfort, function, and modern style. This home has been meticulously maintained and truly shows like new, with pride of ownership evident both inside and out. The open layout features large, light-filled rooms and hardwood flooring throughout the main level, creating a warm and inviting atmosphere. The remodeled kitchen (2017) is a true centerpiece, showcasing granite countertops, stainless steel appliances, soft-close cabinetry, and an extra-large island with breakfast bar, providing the perfect space for cooking, gathering, and entertaining. The kitchen flows effortlessly into the living and dining areas, enhancing both everyday living and hosting. Just off the kitchen, a perfectly positioned main floor office features custom built-in cabinetry and desks, creating an ideal and highly functional work-from-home space. The family room is anchored by a gas log fireplace, with the option to convert back to a gas-starting wood-burning fireplace for added flexibility and charm. Upstairs, the spacious primary suite offers an enormous walk-in closet and a large ensuite bath featuring a double sink vanity, separate shower, and soaking tub. New flooring enhances the second level, while the main level hardwood floors were professionally resealed in 2026, giving the home a fresh, polished feel. All bathrooms have been tastefully updated with modern finishes. The full finished English basement expands the living space even further, featuring a 5th bedroom, full bathroom, spacious rec room with a second fireplace, and bar area, along with additional storage and a dedicated workshop room. This level offers incredible flexibility for guests, entertaining, hobbies, or multi-generational living. Major updates provide peace of mind, including HVAC (2018), hot water heater (2017), roof (2014), and a new front door (2015). The rare side-load 2.5 car garage enhances curb appeal and creates a more attractive elevation. Set on a generous 0.26 acre lot, the property features an in-ground sprinkler irrigation system, a beautifully manicured and professionally landscaped yard, and a composite deck overlooking peaceful water views. A patio and hard-piped gas line to the grill make outdoor entertaining effortless. Ideally located in Lake Villa, the home offers access to a lifestyle centered around natural beauty and recreation. Enjoy nearby Cedar Lake, Deep Lake, and the Chain O' Lakes for boating and fishing, along with miles of trails in the Millennium Trail and surrounding forest preserves. Commuters will appreciate the easy access to METRA, major roadways, and convenient travel to downtown Chicago, O'Hare International Airport, Milwaukee Mitchell International Airport, and approximately 30 minutes to Naval Station Great Lakes.
Property Type(s):
Single Family
| Last Updated | 4/16/2026 | Tract | Cedar Crossing |
|---|---|---|---|
| Year Built | 1998 | Community | Lake Villa / Lindenhurst |
| Garage Spaces | 2.5 | County | Lake |
SCHOOLS
| School District | Grayslake North High School |
|---|---|
| Elementary School | William L Thompson School |
| Jr. High School | Peter J Palombi School |
| High School | Grayslake North High School |
Additional Details
| AIR | Central Air |
|---|---|
| AIR CONDITIONING | Yes |
| AMENITIES | Insurance |
| APPLIANCES | Dishwasher, Disposal, Dryer, Microwave, Range, Refrigerator, Stainless Steel Appliance(s), Washer |
| AREA | Lake Villa / Lindenhurst |
| BASEMENT | Daylight, Finished, Full, Yes |
| CONSTRUCTION | Brick, Vinyl Siding |
| FIREPLACE | Yes |
| GARAGE | Attached Garage, Yes |
| HEAT | Forced Air, Natural Gas |
| HOA DUES | 400 |
| LOT | 0.26 acre(s) |
| LOT DIMENSIONS | 11326 |
| PARKING | Asphalt, Garage Door Opener, Attached, Garage |
| SEWER | Public Sewer |
| STYLE | Contemporary |
| SUBDIVISION | Cedar Crossing |
| TAXES | 12549 |
| WATER | Public |
Location
Listed with Village Realty
The data relating to real estate for sale on this web site comes in part from the Broker ReciprocitySM Program of MRED. All real estate listings are marked with the Broker ReciprocitySM logo or the MRED Broker ReciprocitySM thumbnail logo (a little black house) and detailed information about them includes the name of the listing brokers.
The broker providing these data believes them to be correct, but advises interested parties to confirm them before relying on them in a purchase decision.
Copyright 2026 MRED. All rights reserved.

The broker providing these data believes them to be correct, but advises interested parties to confirm them before relying on them in a purchase decision.
Copyright 2026 MRED. All rights reserved.
This IDX solution is (c) Diverse Solutions 2026.

