|
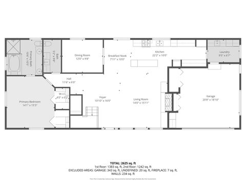
Prepare to be amazed by this all-brick, truly remarkable home perfectly situated on a quiet, mature street in unincorporated Lockport. Meticulously maintained with an unmatched attention to detail, this home stands out from the moment you arrive. The main level offers a spacious, open floor plan that is both functional and inviting, filled with natural light and finished with real hardwood floors that continue throughout both levels of the home. The living area features a cozy electric fireplace with stunning custom built-ins, creating a warm and elevated focal point. The kitchen is a true showpiece, complete with high-quality custom cabinetry, granite countertops, an oversized eat-in island, and a separate dining area-perfect for everyday living and entertaining. The main level primary suite is a private retreat, featuring a beautifully designed en suite bathroom with a jacuzzi tub, separate glass and tile walk-in shower, and thoughtful finishes throughout. A convenient first-floor laundry room is located just off the garage, along with a stylish half bath. One of the most unique features of the home is the cedar-lined dual closet with custom built-ins and granite countertops-both functional and impressive. Upstairs, you'll find a versatile second living space that can easily serve as a family room, playroom, office, or flex space to fit your needs. Two generously sized bedrooms offer custom closets with built-ins and ample storage. The second full bathroom is equally impressive, featuring a soaking tub, separate Corian walk-in shower, and double vanity. Step outside to a fully fenced backyard that feels like your own private retreat. The expansive brick paver patio, custom brick fireplace with granite tops, and serene pond with waterfall create the perfect setting for entertaining or relaxing. Natural gas grill and a storage shed adds even more functionality to the outdoor space - plus a WHOLE HOUSE GENERATOR! The attached garage is finished with epoxy flooring and includes built-in storage cabinets, a sink, fridge, and convenient side door access. The extra-wide driveway features an additional concrete parking pad alongside the garage-ideal for extra vehicles, a boat, or RV. A clean and easily accessible 3-foot concrete crawl space provides even more storage options. Ideally located with close proximity to shopping, dining, and entertainment in both Lockport and Lemont, with easy access to I-355, nearby golf courses, and forest preserves-this location truly offers the best of everything. Between the quality of the home and the unbeatable location, this is one you won't want to miss.
Property Type(s):
Single Family
| Last Updated | 4/20/2026 | Year Built | 1962 |
|---|---|---|---|
| Community | Homer / Lockport | Garage Spaces | 2.0 |
| County | Will |
SCHOOLS
| School District | Lockport Township High School |
|---|---|
| High School | Lockport Township High School |
Additional Details
| AIR | Ceiling Fan(s), Central Air, Zoned |
|---|---|
| AIR CONDITIONING | Yes |
| APPLIANCES | Dishwasher, Dryer, Microwave, Range, Range Hood, Refrigerator, Stainless Steel Appliance(s), Washer, Water Softener, Water Softener Owned, Wine Refrigerator |
| AREA | Homer / Lockport |
| BASEMENT | Crawl Space, Sump Pump |
| CONSTRUCTION | Brick |
| EXTERIOR | Barbecue, Fire Pit, Outdoor Grill |
| FIREPLACE | Yes |
| GARAGE | Attached Garage, Yes |
| HEAT | Forced Air, Natural Gas, Zoned |
| INTERIOR | Built-in Features, Granite Counters, Open Floorplan, Walk-In Closet(s) |
| LOT | 0.28 acre(s) |
| LOT DIMENSIONS | 97x134 |
| PARKING | Concrete, Garage Door Opener, Attached, Garage, Driveway |
| SEWER | Septic Tank |
| TAXES | 8168 |
| WATER | Well |
Location
Listed with @properties Christie's International Real Estate
The data relating to real estate for sale on this web site comes in part from the Broker ReciprocitySM Program of MRED. All real estate listings are marked with the Broker ReciprocitySM logo or the MRED Broker ReciprocitySM thumbnail logo (a little black house) and detailed information about them includes the name of the listing brokers.
The broker providing these data believes them to be correct, but advises interested parties to confirm them before relying on them in a purchase decision.
Copyright 2026 MRED. All rights reserved.

The broker providing these data believes them to be correct, but advises interested parties to confirm them before relying on them in a purchase decision.
Copyright 2026 MRED. All rights reserved.
This IDX solution is (c) Diverse Solutions 2026.

