|
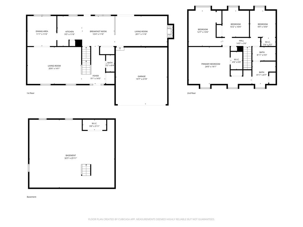
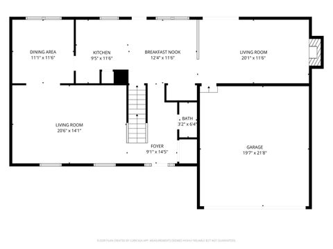
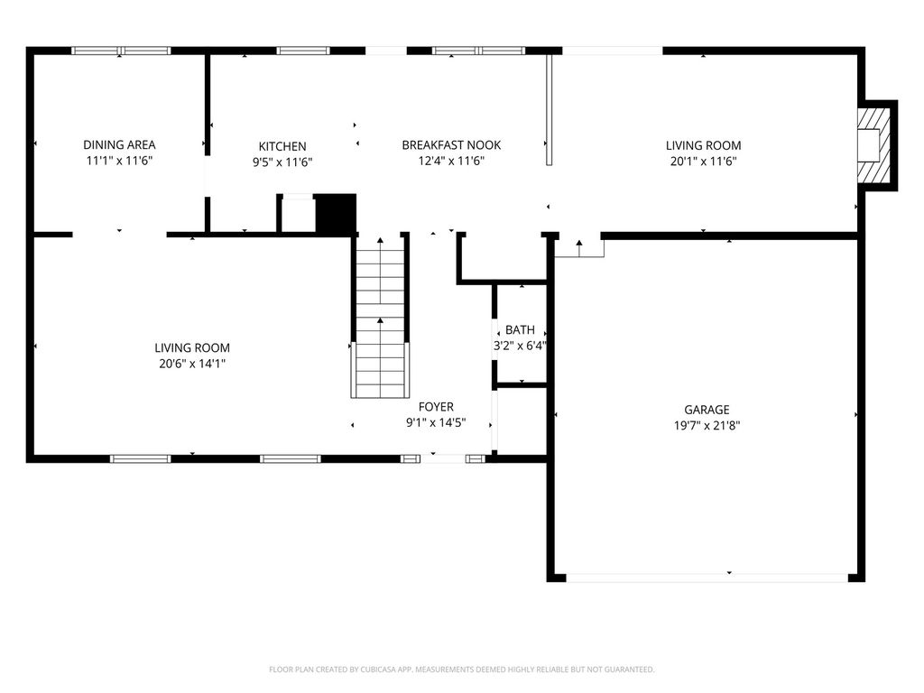
Charming 4-Bedroom Fairfax Model in Winston Grove. Welcome to this warm and inviting 4-bedroom, 2.5-bathroom single-family home located in the highly sought-after Winston Grove subdivision of Elk Grove Village. This classic Fairfax model has been lovingly cared for by the same owners for over three decades. The main level offers a spacious and functional open-concept layout, perfect for today's lifestyle. The light-filled living and dining areas flow seamlessly into the kitchen and a cozy family room-ideal for both daily living and entertaining. A convenient powder room is located on the first floor, and sliding doors off the family room lead to a beautifully maintained backyard and patio, providing a perfect space for outdoor gatherings or quiet evenings. Upstairs, you'll find four bedrooms, all with ample closet space, and two full bathrooms, including a primary suite with en-suite bath. Each space has been thoughtfully maintained, offering comfort and functionality for families of all sizes. While the home is very clean, well-maintained, and priced accordingly, it is ready for cosmetic updates, making it a great opportunity for buyers looking to build equity in a highly sought-after neighborhood within the top-rated School Districts 54 and 211. Whether you're an investor, first-time buyer, or someone with a vision, this property has endless potential. A standout feature of this Fairfax model is the spacious unfinished full basement. Unlike many homes in the area with limited crawlspaces, this expansive lower level offers incredible versatility. Additional highlights include an attached 2 car garage and a well-kept exterior with mature landscaping. The home is situated on a quiet residential street, yet just minutes from Woodfield Mall, Mallard Shopping Center, parks, dining, and major expressways for easy commuting. Don't miss your chance to make this beloved property your next home!
Property Type(s):
Single Family
| Last Updated | 4/16/2026 | Tract | Winston Grove |
|---|---|---|---|
| Year Built | 1977 | Community | Elk Grove Village |
| Garage Spaces | 2.0 | County | Cook |
SCHOOLS
| School District | J B Conant High School |
|---|---|
| Elementary School | Adlai Stevenson Elementary Schoo |
| Jr. High School | Margaret Mead Junior High School |
| High School | J B Conant High School |
Additional Details
| AIR | Central Air |
|---|---|
| AIR CONDITIONING | Yes |
| APPLIANCES | Cooktop, Dishwasher, Disposal, Electric Cooktop, Microwave, Range, Refrigerator |
| AREA | Elk Grove Village |
| BASEMENT | Full, Unfinished, Yes |
| CONSTRUCTION | Brick Veneer, Vinyl Siding |
| FIREPLACE | Yes |
| GARAGE | Attached Garage, Yes |
| HEAT | Natural Gas |
| INTERIOR | Walk-In Closet(s) |
| LOT | 9975 sq ft |
| LOT DIMENSIONS | 9991 |
| PARKING | Concrete, Garage Door Opener, Attached, Garage |
| SEWER | Public Sewer |
| SUBDIVISION | Winston Grove |
| TAXES | 3564.35 |
| WATER | Public |
Location
Listed with Berkshire Hathaway HomeServices American Heritage
The data relating to real estate for sale on this web site comes in part from the Broker ReciprocitySM Program of MRED. All real estate listings are marked with the Broker ReciprocitySM logo or the MRED Broker ReciprocitySM thumbnail logo (a little black house) and detailed information about them includes the name of the listing brokers.
The broker providing these data believes them to be correct, but advises interested parties to confirm them before relying on them in a purchase decision.
Copyright 2026 MRED. All rights reserved.

The broker providing these data believes them to be correct, but advises interested parties to confirm them before relying on them in a purchase decision.
Copyright 2026 MRED. All rights reserved.
This IDX solution is (c) Diverse Solutions 2026.

