|
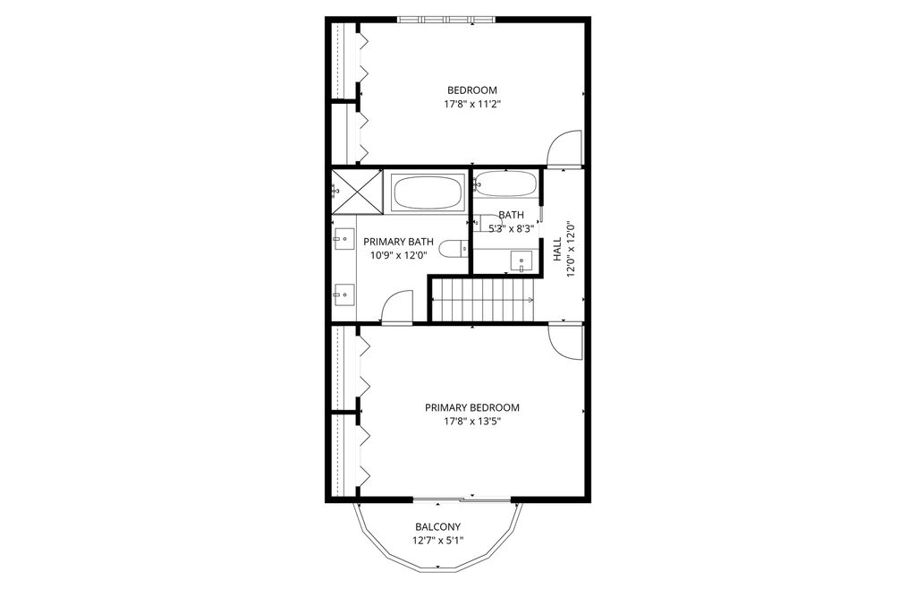
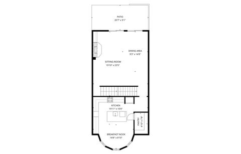
Belgravia Terrace is one of Lincoln Park's most quietly coveted communities a tucked-away enclave known for its sense of community, landscaped courtyards, and proximity to top schools, parks, and the lake. This 4-bedroom, 4-bath townhome lives like a single-family home, offering approximately 3,100 square feet of well-proportioned space with high ceilings, great natural light, and a layout that balances openness with separation across multiple levels. The main level is anchored by a spacious living and dining area with a fireplace, creating a warm, comfortable setting for both everyday living and entertaining. Two sliding glass doors bring in beautiful natural light and open to a private patio, adding an easy indoor-outdoor flow. The eat-in kitchen offers ample size, a large pantry, and generous storage, and sits just off the dining room-providing a practical and connected setup for hosting. A third-floor family room adds valuable flexibility as a second living space-ideal for a media room, office, or playroom giving the home a level of versatility that is hard to find. Upstairs, the primary suite is a quiet retreat with generous closet space, a well-sized bath, and a private balcony an ideal spot for morning coffee or a bit of fresh air. Additional bedrooms are thoughtfully positioned, offering flexibility for guests, work-from-home needs, or evolving lifestyles. The lower level provides additional living space with direct access to the heated two-car garage and secure storage. Outdoor space extends the home even further, while the attached garage with an EV charger adds a rare level of convenience. Dual HVAC systems ensure year-round comfort. Set within a professionally managed, well-maintained community, this is a rare opportunity to own a home defined by its scale, layout, and long-term potential in one of Lincoln Park's most desirable settings.
Property Type(s):
Condo/Townhouse/Co-Op
| Last Updated | 4/18/2026 | Year Built | 1988 |
|---|---|---|---|
| Community | CHI - Lincoln Park | Garage Spaces | 2.0 |
| County | Cook |
SCHOOLS
| School District | Lincoln Park High School |
|---|---|
| Elementary School | Lincoln Elementary School |
| Jr. High School | Lincoln Elementary School |
| High School | Lincoln Park High School |
Additional Details
| AIR | Ceiling Fan(s), Central Air, Zoned |
|---|---|
| AIR CONDITIONING | Yes |
| AMENITIES | Snow Removal, Water |
| APPLIANCES | Cooktop, Dishwasher, Disposal, Double Oven, Freezer, Gas Cooktop, Humidifier, Microwave, Range, Refrigerator, Wine Refrigerator |
| AREA | CHI - Lincoln Park |
| BASEMENT | None |
| CONSTRUCTION | Brick |
| EXTERIOR | Barbecue, Outdoor Grill |
| FIREPLACE | Yes |
| GARAGE | Attached Garage, Yes |
| HEAT | Forced Air, Natural Gas |
| HOA DUES | 963 |
| LOT | 0 |
| LOT DIMENSIONS | COMMON |
| PARKING | Asphalt, Garage Door Opener, Heated Garage, Attached, Garage |
| SEWER | Public Sewer |
| STORIES | 4 |
| TAXES | 24391.42 |
| WATER | Public |
Location
Listed with Compass
The data relating to real estate for sale on this web site comes in part from the Broker ReciprocitySM Program of MRED. All real estate listings are marked with the Broker ReciprocitySM logo or the MRED Broker ReciprocitySM thumbnail logo (a little black house) and detailed information about them includes the name of the listing brokers.
The broker providing these data believes them to be correct, but advises interested parties to confirm them before relying on them in a purchase decision.
Copyright 2026 MRED. All rights reserved.

The broker providing these data believes them to be correct, but advises interested parties to confirm them before relying on them in a purchase decision.
Copyright 2026 MRED. All rights reserved.
This IDX solution is (c) Diverse Solutions 2026.

