|
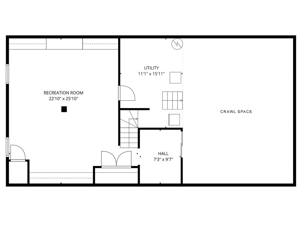
The layout strikes that rare balance: open when you want it, defined where you need it, and designed to feel as good as it looks. A polished foyer with porcelain tile and generous storage sets the tone, leading into sunlit living and dining spaces with crown molding and clean, timeless finishes, equally suited for hosting or just hanging out. The kitchen anchors the home with quartz countertops, a penny tile backsplash, and a premium appliance package, all centered around an island that naturally becomes the place everyone gathers. From there, the eating area and expansive family room, with a gas-start fireplace, flow effortlessly out to the patio, while a separate great room with its own access to the yard gives you flexibility to spread out, entertain, or reimagine the space entirely. A true main-level office, complete with built-ins, offers a great work from-home setup, and the mudroom/laundry area is exactly where you want it, functional, tucked away, and with direct access outside. Upstairs, the huge primary suite delivers on both space and storage, with multiple closets including a well-organized walk-in, and an en suite bath featuring dual vanities, a Whirlpool tub, and a steam shower that feels like a daily escape. Three additional bedrooms are well-proportioned with thoughtful storage, supported by updated, stylish hall baths. The finished lower level adds even more versatility with a large recreation space, built-ins, and plenty of storage, ideal for movie nights, workouts, or play. With key updates already handled, including mechanicals, roof, and a renovated kitchen, this is a move-in ready home. Set on a property with a concrete driveway and inviting outdoor space, it's the kind of home that simply works. Best of all, it is located in District 30 with award winning schools, a stone's throw to Greenview Park and just minutes to shopping, dining, entertainment, highway, Metra and more!
Property Type(s):
Single Family
| Last Updated | 4/16/2026 | Tract | Stonehedge |
|---|---|---|---|
| Year Built | 1976 | Community | Northbrook |
| Garage Spaces | 2.0 | County | Cook |
SCHOOLS
| School District | Glenbrook North High School |
|---|---|
| Elementary School | Wescott Elementary School |
| Jr. High School | Maple School |
| High School | Glenbrook North High School |
Additional Details
| AIR | Ceiling Fan(s), Central Air |
|---|---|
| AIR CONDITIONING | Yes |
| APPLIANCES | Humidifier |
| AREA | Northbrook |
| BASEMENT | Finished, Partial, Sump Pump, Yes |
| CONSTRUCTION | Brick, Cedar |
| FIREPLACE | Yes |
| GARAGE | Attached Garage, Yes |
| HEAT | Forced Air, Natural Gas |
| INTERIOR | Entrance Foyer, Open Floorplan, Walk-In Closet(s) |
| LOT | 0.275 acre(s) |
| LOT DESCRIPTION | Corner Lot |
| LOT DIMENSIONS | 80X81X37X33X49X13X25X135 |
| PARKING | Concrete, Garage Door Opener, Attached, Garage |
| SEWER | Public Sewer |
| SUBDIVISION | Stonehedge |
| TAXES | 16751.28 |
| WATER | Public |
Location
Listed with @properties Christie's International Real Estate
The data relating to real estate for sale on this web site comes in part from the Broker ReciprocitySM Program of MRED. All real estate listings are marked with the Broker ReciprocitySM logo or the MRED Broker ReciprocitySM thumbnail logo (a little black house) and detailed information about them includes the name of the listing brokers.
The broker providing these data believes them to be correct, but advises interested parties to confirm them before relying on them in a purchase decision.
Copyright 2026 MRED. All rights reserved.

The broker providing these data believes them to be correct, but advises interested parties to confirm them before relying on them in a purchase decision.
Copyright 2026 MRED. All rights reserved.
This IDX solution is (c) Diverse Solutions 2026.

