|
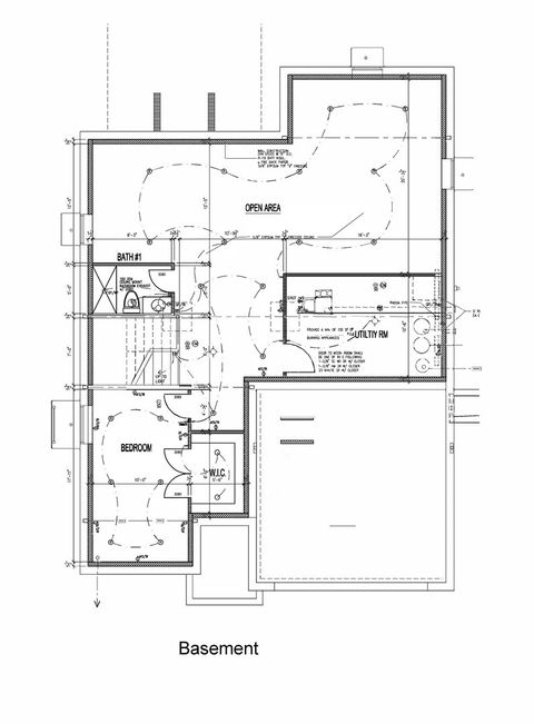
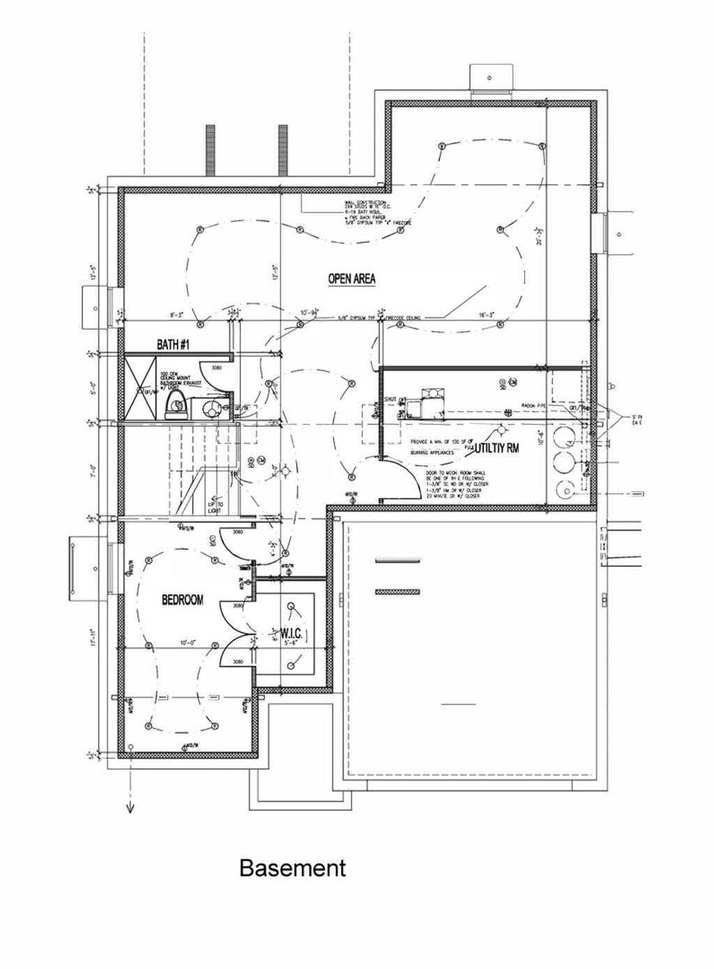
Don't miss this exceptional opportunity to own a thoughtfully designed new construction home featuring 5 bedrooms and 5 full bathrooms with high-end finishes and a unique, versatile layout. Situated in a highly desirable neighborhood on a quiet low-traffic street near Eldridge Park, this home offers both privacy and convenience. All measurements and square footage are approximate. The main level showcases 10-foot ceilings, hardwood flooring, and a stunning chef's kitchen complete with custom cabinetry, high-end appliances, beverage fridge, microwave, and a spacious walk-in pantry-perfect for both everyday living and entertaining. The first floor also includes a full bathroom with a standing shower, offering added flexibility for guests or everyday use. Upstairs, you'll find hardwood flooring throughout, a convenient second-floor laundry room, and a luxurious primary suite featuring a freestanding soaking tub, separate walk-in shower, and expansive walk-in closet. Bedrooms 2 and 3 are connected by a Jack-and-Jill bath, each with their own walk-in closets, along with an additional full bath in the hallway. The fully finished basement offers even more living space with a bedroom, wet bar, and large open recreation area with durable vinyl flooring-ideal for entertaining or relaxing. BONUS ROOM: This home includes a rare 3-level, 30x20 flex space, ready to be customized to your needs-whether it's a home gym, office, media room, library, or playroom. A truly unique feature that sets this home apart. This one-of-a-kind new construction blends luxury, function, and flexibility-secure it early and make it your own!
Property Type(s):
Single Family
| Last Updated | 4/16/2026 | Year Built | 2026 |
|---|---|---|---|
| Community | Elmhurst | Garage Spaces | 2.0 |
| County | DuPage |
SCHOOLS
| School District | York Community High School |
|---|---|
| Elementary School | Jackson Elementary School |
| Jr. High School | Bryan Middle School |
| High School | York Community High School |
Additional Details
| AIR | Central Air |
|---|---|
| AIR CONDITIONING | Yes |
| AREA | Elmhurst |
| BASEMENT | Finished, Full, Yes |
| CONSTRUCTION | Fiber Cement, Stone |
| GARAGE | Attached Garage, Yes |
| HEAT | Natural Gas |
| INTERIOR | Coffered Ceiling(s), High Ceilings, Pantry, Walk-In Closet(s), Wet Bar |
| LOT | 0 |
| LOT DIMENSIONS | 50x132 |
| PARKING | Concrete, Garage Door Opener, Attached, Garage |
| SEWER | Public Sewer |
| TAXES | 7393 |
Location
Listed with Executive Realty Group LLC
The data relating to real estate for sale on this web site comes in part from the Broker ReciprocitySM Program of MRED. All real estate listings are marked with the Broker ReciprocitySM logo or the MRED Broker ReciprocitySM thumbnail logo (a little black house) and detailed information about them includes the name of the listing brokers.
The broker providing these data believes them to be correct, but advises interested parties to confirm them before relying on them in a purchase decision.
Copyright 2026 MRED. All rights reserved.

The broker providing these data believes them to be correct, but advises interested parties to confirm them before relying on them in a purchase decision.
Copyright 2026 MRED. All rights reserved.
This IDX solution is (c) Diverse Solutions 2026.

