|
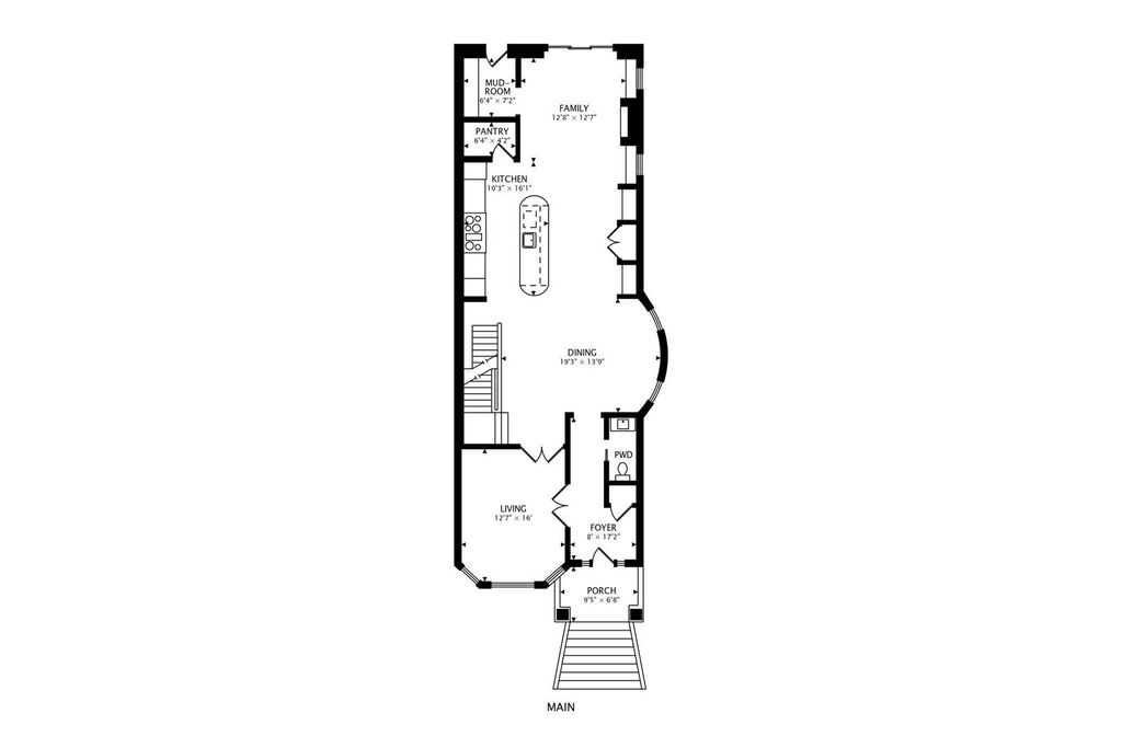
Situated in the Southport Corridor neighborhood within the exceptional Blaine Elementary district, this just-completed, architecturally striking residence on a 30' wide lot delivers a full, ground-up reconstruction behind its original granite and stone facade, offering a thoughtfully designed floor plan with all-new, custom finishes throughout. Spanning approximately 5,539 square feet across four expansive levels, the home offers 6 bedrooms, 5 full bathrooms, and 2 powder rooms, designed for both everyday living and elevated entertaining. The main level features a bold, color-drenched parlor living room with herringbone white oak flooring and oversized arched windows. The curved bow window defines the dining room and carries through multiple levels as a signature architectural detail. The chef's kitchen is anchored by a 48" Wolf range, paneled Sub-Zero refrigerator and freezer columns, quartz countertops, custom cabinetry with curves complimenting the architectural details of the home, and a statement custom hood. Excellent storage including two pantry closets and a wet bar, all opening to a warm family room centered around a fireplace with built-ins. A well-designed mudroom adds everyday functionality, and the rear snow melt ready terrace extends off the family room, connecting to the 3-car garage roof deck for seamless indoor-outdoor living. The home is finished with brand new windows, roof, mechanicals throughout and exceptional millwork including 8' doors, white oak flooring, crown molding, and custom closet systems. The second level offers four bedrooms and three full baths, including a spacious primary suite with dual walk-in closets and a spa bath featuring a double vanity with exceptional storage, heated floors, an oversized steam shower with rain head, and a separate soaking tub. A proper walk-in laundry room with sink, storage, and folding counter adds everyday convenience. The third-floor loft provides exceptional flexibility with a full wet bar, dishwasher, and full bath, ideal for a media room or home office, and opens to an expansive west-facing rooftop deck with both covered and open-air spaces, enhanced by original castle-inspired architectural elements that create a unique elevated setting for entertaining, sunset views, and the ability to listen in to nearby Wrigley Field concerts and game day cheers. The lower level is fully finished with 9' ceilings, radiant heated LVT flooring throughout, a large recreation room with wet bar and beverage fridge, two additional bedrooms connected by a Jack and Jill bath, and an additional powder room. All of this is set just steps from the best of Southport Corridor, with easy access to boutiques like Alice & Wonder, Lululemon, Free People, and Madewell, along with dining and cafe favorites including Crosby's Kitchen, Uncommon Ground, Bake House, Starbucks, Swift & Sons Tavern, Big Star, and Tango Sur, plus nearby green spaces like Gallagher Way and Juniper Park, offering a rare opportunity to own a just-completed, ground-up residence of this caliber in one of Chicago's most vibrant neighborhoods.
Property Type(s):
Single Family
| Last Updated | 4/21/2026 | Year Built | 1906 |
|---|---|---|---|
| Community | CHI - Lake View | Garage Spaces | 3.0 |
| County | Cook |
SCHOOLS
| School District | Lake View High School |
|---|---|
| Elementary School | Blaine Elementary School |
| Jr. High School | Blaine Elementary School |
| High School | Lake View High School |
Additional Details
| AIR | Central Air |
|---|---|
| AIR CONDITIONING | Yes |
| APPLIANCES | Dishwasher, Disposal, Dryer, Freezer, Gas Cooktop, Microwave, Range, Range Hood, Washer, Wine Refrigerator |
| AREA | CHI - Lake View |
| BASEMENT | Daylight, Finished, Full, Yes |
| CONSTRUCTION | Brick, Stone |
| FIREPLACE | Yes |
| GARAGE | Yes |
| HEAT | Natural Gas, Radiant Floor |
| INTERIOR | Built-in Features, Entrance Foyer, High Ceilings, Open Floorplan, Pantry, Walk-In Closet(s), Wet Bar |
| LOT | 0 |
| LOT DIMENSIONS | 30X124 |
| PARKING | Garage Door Opener, Detached, Garage |
| SEWER | Public Sewer |
| STYLE | Greystone |
| TAXES | 22702.8 |
| WATER | Public |
Location
Listed with @properties Christie's International Real Estate
The data relating to real estate for sale on this web site comes in part from the Broker ReciprocitySM Program of MRED. All real estate listings are marked with the Broker ReciprocitySM logo or the MRED Broker ReciprocitySM thumbnail logo (a little black house) and detailed information about them includes the name of the listing brokers.
The broker providing these data believes them to be correct, but advises interested parties to confirm them before relying on them in a purchase decision.
Copyright 2026 MRED. All rights reserved.

The broker providing these data believes them to be correct, but advises interested parties to confirm them before relying on them in a purchase decision.
Copyright 2026 MRED. All rights reserved.
This IDX solution is (c) Diverse Solutions 2026.

